Ladder Series Back-to-Back Towel Bar
Towel Bars- An Attractive Handle to Add Contrast to Decor
- No Metal Washers Creates a Sleek, Continuous Appearance
- Stocked in Popular 18″ and 24″ (457 and 610 mm) Sizes
- Several Stock Finishes, with Customer Finishes Available for Use with Monolithic Glass
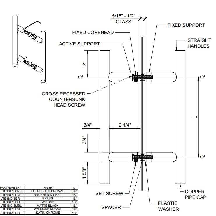
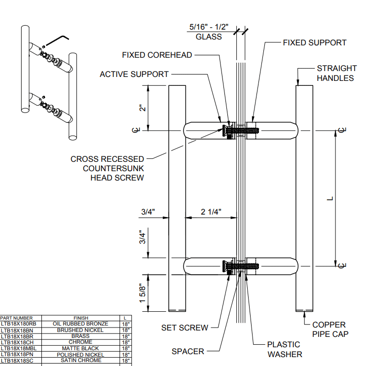
Ladder Style Towel Bars say “notice me” when mounted to a heavy frameless shower enclosure. The extra width when compared to typical shower door pull handles, makes for a unique appearance and contemporary design. Ladder Style Towel Bars are available Single-Sided, Back-to-Back and Towel Bar Pull Combination mounting using supplied through bolts on 5/16″, 3/8″ or 1/2″ (8, 10 or 12 mm) thick glass. Material diameter is 3/4″ (19 mm).
Description
Two each 1/2″ (12.7 mm) Holes required
Additional information
| Finish/Color | Polished Chrome, Brush Nickel, Matte Black |
|---|



